Používáme cookies k optimalizaci našich webových stránek a našich služeb. Další informace o cookies najdete zde.

Nastavení


Byt 2+1 v osobním vlastnictví, Liberec, ul. Sametová - sídliště Broumovská - REZERVACE

Byt 2+1 v osobním vlastnictví, Liberec, ul. Sametová - sídliště Broumovská - REZERVACE

Popis nemovitosti

 ...................................................................

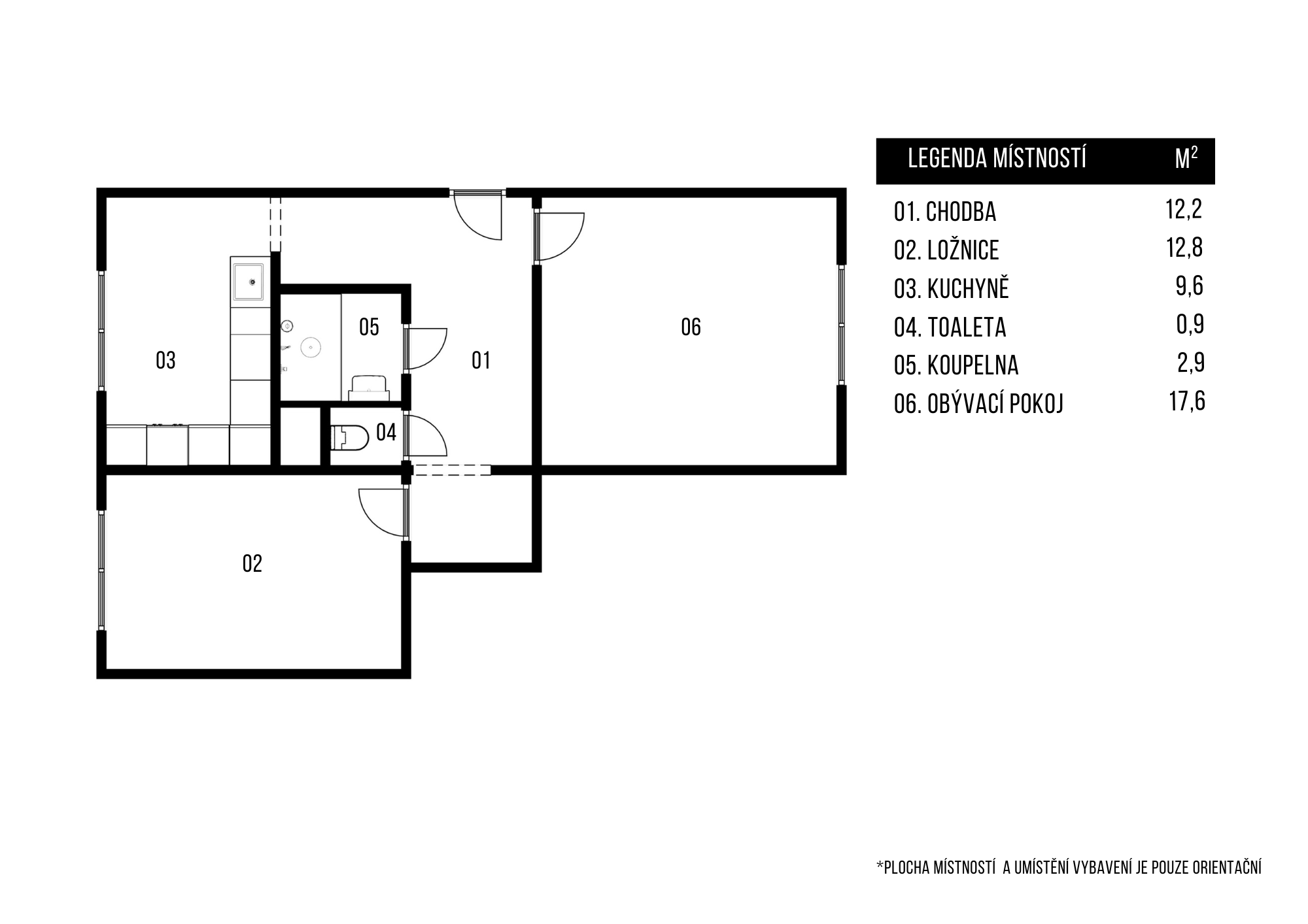
Plocha bytu: 56,5 m2  

Umístění v podlaží: 4.

Zařízený: ne

................................................................... 

Aktuální měsíční náklady: 4.480,-Kč

 + elektřina

PENB: D

................................................................... 

 Cena: 4.190.000,-Kč

 

V exkluzivním zastoupení majitele nabízíme k prodeji byt o dispozici 2+1 a výměře 56,5 m², umístěný ve 3. patře revitalizovaného panelového domu v oblíbené a klidné části Liberce, ul. Sametová - sídliště Broumovská.

Byt je v původním stavu, který odpovídá době výstavby. Najdete zde původní zděné jádro, starší kuchyňskou linku, podlahy z lina a koberců a tapetované stěny. Pro někoho to může znamenat nutnost rekonstrukce, pro jiné naopak skvělou příležitost přetvořit byt přesně podle svých představ.
Velkou předností bytu je praktická dispozice 2+1 s oddělenou kuchyní a prostornými pokoji a také celková výměra 56,5 m² (+ sklepní kóje 2m2), která nabízí dostatek prostoru pro pohodlné bydlení. Na rozdíl od mnoha novostaveb má tento byt vzdušné místnosti, širokou chodbu a dostatek úložného prostoru.
Při osobní prohlídce tohoto bytu oceníte jeho atmosféru, klidné umístění a velký potenciál pro moderní bydlení.

Panelový dům je již po revitalizaci – má zateplenou fasádu, plastová okna, výtah, atd. a udržované společné prostory.

Sídliště Broumovská patří mezi nejžádanější části Liberce. Jedná se o tiché a zelené prostředí s plnou občanskou vybaveností a zároveň výbornou dostupností do centra města. V bezprostřední blízkosti se nachází základní škola, mateřská škola, zastávka MHD, obchody i sportovní areály. Díky okolní zeleni a klidné atmosféře jde o ideální místo pro rodiny, seniory i jednotlivce, kteří hledají pohodové bydlení s městským komfortem.

Pro bližší informace nebo sjednání termínu prohlídky mne neváhejte kontaktovat. Rád Vám tuto zajímavou nabídku představím.


Nemovitost je možno financovat hypotečním úvěrem do 90% LTV. Financování jako přední hypoteční specialista s 15 - ti lety praxe rád zdarma zajistím za exkluzivních VIP podmínek.

Videoprohlídka

    sametova_pudors1 sametova_pudorys2 sametova_pudorys4  

Jiří Chupek

Práce realitního makléře a hypotečního specialisty je pro mne nejen profesí, ale i vášní. Spojuji, ty kteří chtějí prodat svůj domov, s těmi, kteří hledají ideální bydlení. Každý den je novou výzvou, kdy mohu pomáhat lidem v důležitých životních rozhodnutích.

Mou motivací je spokojenost klientů. Když se mi podaří prodat Vaši nemovitost za skvělou cenu nebo pro Vás zajistit financování vysněného bydlení, cítím obrovské naplnění. Každá transakce má svůj příběh, a to mě inspiruje. Neustále se vzdělávám a sleduji trendy, abych mohl klientům poskytovat nejlepší služby.

Jsem hrdý, že mohu být součástí tak důležitých momentů v životě svých klientů. Práce realitního makléře a hypotečního specialisty je pro mne již 15 let koníčkem, který mi dává smysl a radost. Motivuje mě každý den být lepší.


Jiří Chupek

Kontaktní formulář

Stáhnout PDF